|
在线咨询

微信公众账号
|
|
| |
|
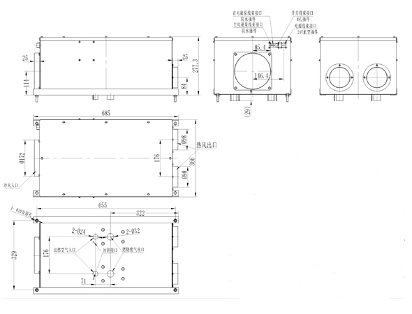
| 产品名称: |
FJH-15A |
| 参数介绍: |
热流量(KW): 15
耗油量(H/h): 1.8
工作电压(V): 12/24
功耗(W): 400
重量(KG): 9
外形尺寸(mm): 685×366×277
适用范围:适用于特种车设备舱、保温舱升温取暖,各类工程车辆操作室取暖
|
| 安装图纸: |
|
| 备注信息: |
采用挥发雾化技术,燃烧更加充分,稳定,热效率高。能够在-45℃以上的超低温环境下运行,彻底解决了低温环境下野外舱体采暖要求的困扰; 特点: 1.结构紧凑,体积小巧,安装维修简便; 2.燃烧效率高>99%,低能耗,性能可靠,升温快; 3.油泵采用变频控制,保证油量更精准,排放更低更省电; 4.功率可无极调节,并可选定10℃-30℃自动恒温; 5.具有高海拔补偿装置,保证海拔5000米和其他恶劣条件下正常使用; 6.具有安全保护和自我诊断功能,可选装订时、遥控装置; 7.低噪音,可选装消声器; 8.采用铝合金铸造,无异味,尾气排放符合欧洲环保要求; |
| |
|